Grundejerforeningen Præstegårdsvej #

Denne side tilhører Grundejerforeningen præstegårdsvej. Her kan du finde de relevante oplysninger og dokumenter.
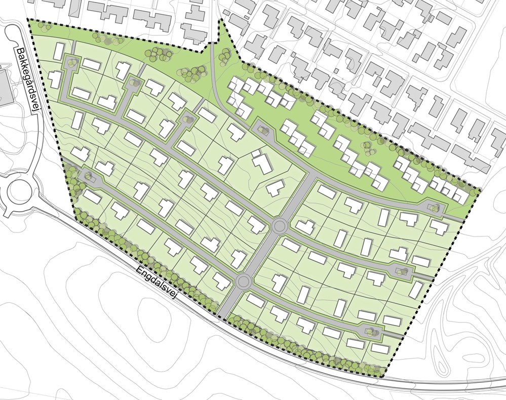
Grundejerforeningen har til formål at drifte de fælles arealer som dækket i lokalplan 319 i Favrskov Kommune.
Vi dækker dette område:
